O nosso website armazena cookies no seu equipamento que são utilizados para assegurar funcionalidades que lhe permitem uma melhor experiência de navegação e utilização. Ao prosseguir com a navegação está a consentir a sua utilização. Para saber mais sobre cookies ou para os desativar consulte a Politica de Cookies Medialivre

Máxima

Edição de Colecionador Comprar Epaper
Celebridades

Se quiser comprar a antiga casa de Meghan Markle agora já pode

A casa situa-se em Los Angeles e está à venda por 1,8 milhões de dólares.

Foto: The Bienstock Group
06 de agosto de 2019 às 15:54 Máxima

Antes de se tornar duquesa de Sussex, Meghan Markle já havia vivido em Los Angeles, quando era casada com o produtor Trevor Engleson. De acordo com o New York Observer, Meghan e Engleson alugaram a casa em Los Angeles quando a atriz conseguiu o seu papel em Suits, já que passava a maior parte do tempo em Toronto. Esta residência está agora para venda no mercado por quase 2 milhões de dólares.

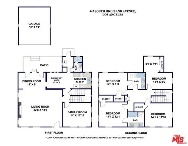
Situa-se no bairro de Hancock Park, no centro de Los Angeles e foi construída em 1924. A casa tem 4 quartos, 3 casas de banho, possui um piso plano em aberto, tem uma área de refeições ao ar livre e uma garagem para dois carros. A cozinha é moderna, com utensílios em aço inoxidável e as casas de banho contam com azulejos azuis e brancos. As cores neutras claras formam a palete de eleição escolhida por Meghan Markle para aquele que já foi o seu lar.

Quando se casou com o príncipe Harry, o casal foi morar para Nottingham Cottage. Recentemente e, antes do bebé Archie Mountbatten-Windor nascer, mudaram de residência para Frogmore Cottage. A mãe da duquesa continua a morar na Califórnia e, por causa disso, fala-se da possibilidade de os duques virem a comprar uma casa nesta zona.

Foto: The Bienstock Group
1 de 32
Foto: The Bienstock Group
2 de 32
Foto: The Bienstock Group
3 de 32
Foto: The Bienstock Group
4 de 32
Foto: The Bienstock Group
5 de 32
Foto: The Bienstock Group
6 de 32
Foto: The Bienstock Group
7 de 32
Foto: The Bienstock Group
8 de 32
Foto: The Bienstock Group
9 de 32
Foto: The Bienstock Group
10 de 32
Foto: The Bienstock Group
11 de 32
Foto: The Bienstock Group
12 de 32
Foto: The Bienstock Group
13 de 32
Foto: The Bienstock Group
14 de 32
Foto: The Bienstock Group
15 de 32
Foto: The Bienstock Group
16 de 32
Foto: The Bienstock Group
17 de 32
Foto: The Bienstock Group
18 de 32
Foto: The Bienstock Group
19 de 32
Foto: The Bienstock Group
20 de 32
Foto: The Bienstock Group
21 de 32
Foto: The Bienstock Group
22 de 32
Foto: The Bienstock Group
23 de 32
Foto: The Bienstock Group
24 de 32
Foto: The Bienstock Group
25 de 32
Foto: The Bienstock Group
26 de 32
Foto: The Bienstock Group
27 de 32
Foto: The Bienstock Group
28 de 32
Foto: The Bienstock Group
29 de 32
Foto: The Bienstock Group
30 de 32
Foto: The Bienstock Group
31 de 32
Foto: The Bienstock Group
32 de 32
Leia também

Como é o quarto do pequeno Archie

O príncipe Harry e Meghan Markle escolheram materiais ecológicos e não-tóxicos para o quarto do primeiro filho em Frogmore Cottage, a casa oficial dos duques de Sussex.

As Mais Lidas